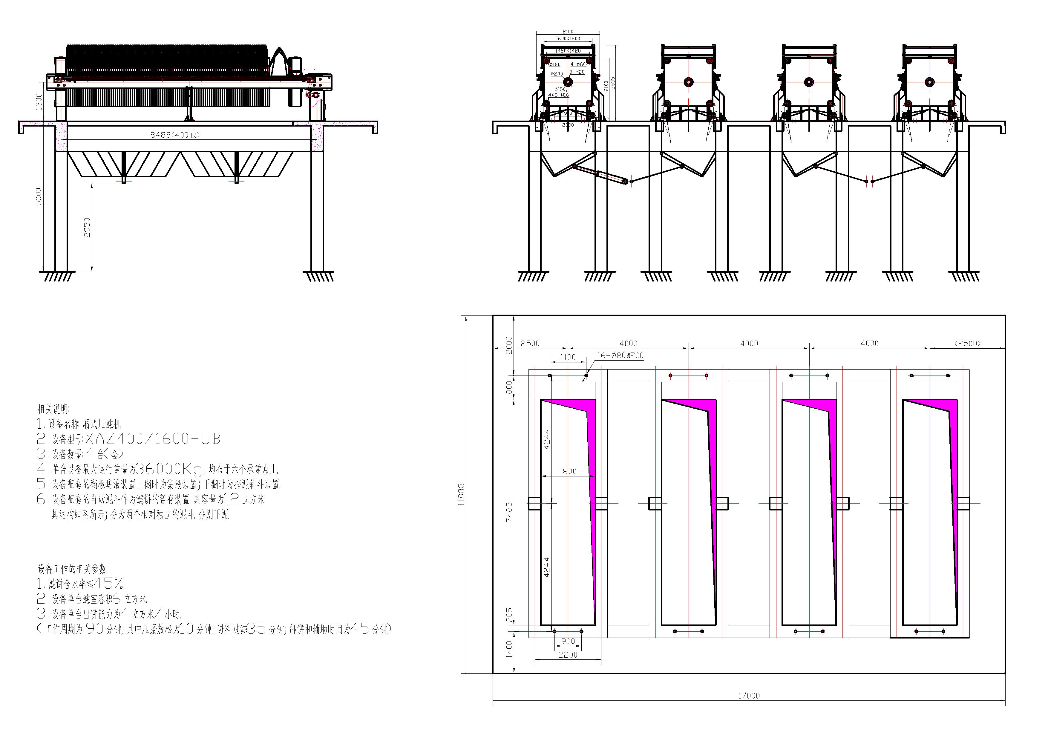
可拆卸的糖心在线观看视频播放钢架及操作平台是为了满足糖心在线观看视频播放的安装、操作、维护以及适应不同使用环境和需求而设计的一种结构,以下是其相关介绍:
一、结构设计:
1) 钢架结构:通常采用型钢(如工字钢、槽钢、角钢等)通过焊接或螺栓连接而成。这种结构设计既保证了钢架的强度和稳定性,能够承受糖心在线观看视频播放工作时的巨大压力和重量,又便于拆卸和组装。例如,在一些大型糖心在线观看视频播放中,钢架的立柱可能采用较大规格的工字钢,以提供足够的支撑力,而横梁则选用槽钢,既能保证承载能力,又能减轻结构重量。 - 为了适应不同型号和规格的糖心在线观看视频播放,钢架的尺寸和布局会根据糖心在线观看视频播放的外形尺寸和安装要求进行定制。比如,对于滤板尺寸较大的糖心在线观看视频播放,钢架的跨度和高度会相应增加,以确保糖心在线观看视频播放能够合理安装在钢架上,并且留出足够的空间用于操作和维护。
2) 操作平台:操作平台一般位于钢架的上部,与糖心在线观看视频播放的操作面处于同一高度,方便操作人员进行进料、卸料、滤板清洗等操作。平台通常由花纹钢板或格栅板铺设而成,具有良好的防滑性能,保障操作人员的安全。 - 平台周围设有防护栏杆,栏杆高度一般不低于1.2米,栏杆上还可能设置踢脚板,以防止人员意外坠落和物品掉落。平台上还会根据需要设置楼梯或爬梯,方便人员上下。楼梯的设计会考虑到人员行走的舒适性和安全性,如楼梯的坡度、踏板宽度和高度等都有相应的标准要求。

二、可拆卸特点
1) 连接方式:钢架及操作平台的可拆卸主要通过螺栓连接和销轴连接等方式实现。在关键部位,如立柱与横梁的连接、平台板与支撑梁的连接等,会采用高强度螺栓进行连接。这种连接方式不仅拆卸方便,而且能够保证连接的紧密性和可靠性,在糖心在线观看视频播放运行过程中不会出现松动现象。例如,在一些需要经常搬迁或维护的糖心在线观看视频播放设备中,使用螺栓连接可以快速地将钢架和操作平台拆卸成若干个部件,便于运输和存储。对于一些承受较大剪切力的部位,可能会采用销轴连接。销轴连接能够有效地传递剪切力,同时也便于拆卸和组装。比如,在钢架的一些转角部位或支撑结构的连接处,销轴连接可以使部件之间的连接更加灵活,便于在安装和拆卸过程中进行调整。
2) 部件设计:钢架和操作平台的各个部件在设计时会考虑到便于拆卸和搬运的因素。例如,部件的尺寸会根据运输工具的尺寸和搬运设备的能力进行设计,尽量将部件设计成较小的尺寸,以便于吊装和运输。同时,部件的重量也会控制在合理范围内,方便人工搬运或使用小型起重设备进行装卸。对于一些较大的部件,可能会设计成可拆分的结构,在运输和安装时再进行组装。
三、优势:
1) 便于安装和调试:可拆卸的结构使得糖心在线观看视频播放钢架及操作平台在安装时可以更加灵活地进行组装,能够适应不同的安装场地和空间要求。在调试过程中,如果发现问题需要对钢架或操作平台进行调整,也可以方便地进行拆卸和修改,减少了安装和调试的时间和成本。
2) 方便维护和更换部件:在糖心在线观看视频播放的使用过程中,难免会出现钢架或操作平台的部件损坏需要更换的情况。可拆卸的设计使得维修人员可以轻松地将损坏的部件拆卸下来,进行更换或维修,而不需要对整个结构进行大规模的拆除和重建。这不仅提高了维修效率,还降低了维修成本,减少了设备停机时间,保证了生产的连续性。
3) 便于运输和搬迁:对于一些需要经常搬迁的糖心在线观看视频播放设备,如在建筑工地、矿山等场所使用的糖心在线观看视频播放,可拆卸的钢架及操作平台可以方便地拆卸成若干个部件,进行运输和重新安装。相比不可拆卸的结构,大大降低了运输难度和成本,提高了设备的机动性和适应性。
4) 可重复使用:可拆卸的糖心在线观看视频播放钢架及操作平台在设备更新或更换场地时,可以将其拆卸下来,在新的项目中继续使用。这不仅节约了资源,还减少了废弃物的产生,具有较好的经济效益和环境效益。

四、应用场景:
1) 工业生产领域:在化工、制药、食品加工等行业中,糖心在线观看视频播放常用于固液分离过程。可拆卸的钢架及操作平台可以根据不同的生产工艺和场地要求进行灵活安装和调整,满足生产过程中对糖心在线观看视频播放的操作和维护需求。例如,在一些制药厂中,由于生产工艺的特殊性,可能需要定期对糖心在线观看视频播放进行清洗和消毒,可拆卸的操作平台可以方便地进行清洁工作,确保生产环境的卫生和药品质量的安全。
2) 环保领域:在污水处理厂、垃圾处理厂等环保设施中,糖心在线观看视频播放用于污泥脱水等工艺。可拆卸的钢架及操作平台可以适应不同规模的环保设施建设和改造需求。比如,在一些小型污水处理站的扩建过程中,可拆卸的糖心在线观看视频播放钢架及操作平台可以方便地进行拆卸和重新安装,以满足处理规模增加后的设备布置要求。
3) 矿山领域:在矿山开采过程中,需要对矿浆进行固液分离。可拆卸的糖心在线观看视频播放钢架及操作平台可以根据矿山的地形和开采条件进行灵活安装和搬迁。例如,在一些露天矿山中,随着开采面的移动,糖心在线观看视频播放需要定期搬迁到新的位置,可拆卸的结构使得这一过程更加便捷,提高了矿山生产的效率和经济性。

如您在糖心在线观看视频播放、过滤工程选型中需要更多的过滤与分离方面的咨询,欢迎来电(13732231928周经理)咨询,糖心网站在线观看可根据您现场过滤工况和您共同做好设备方案设计和科学选型